Park Street, Mayfair, W1

Price £2,200 pw New Instruction

Price £2,200 pw - Available Now - Furnished


  • Air Conditioning
  • Newly Refurbished

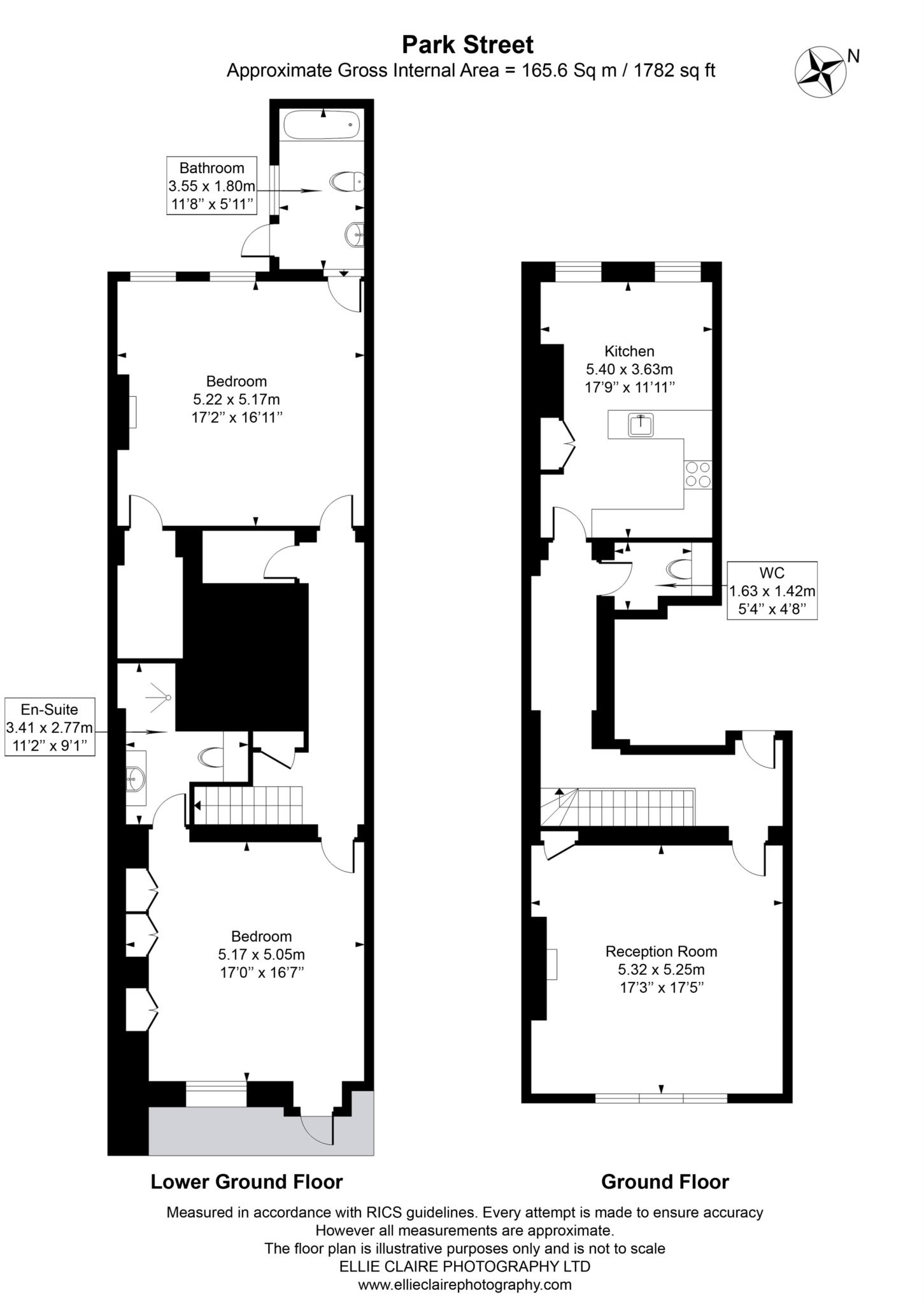
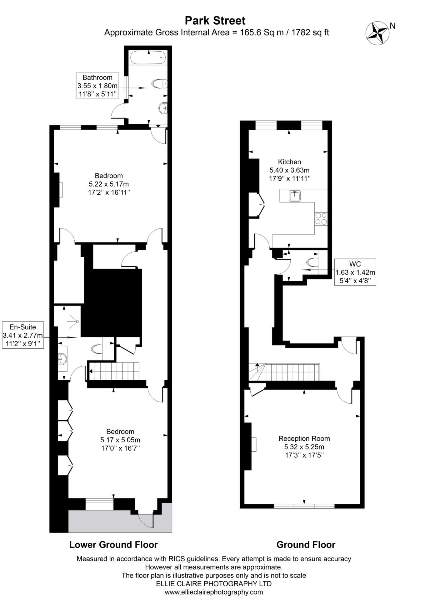
A wonderful two double bedroom apartment situated on the ground & lower ground floors of this smart period house just off Park Lane near Hyde Park, Marble Arch & Bond Street tubes.The apartment is decorated and furnished to the highest of standards in a contemporary, classic style with many beautiful period features including ornate plaster work comprising very spacious reception room, brand newly fully fitted and equipped kitchen/breakfast room, guest cloakroom, two very large double bedrooms with fitted wardrobes and two super luxury bathrooms one a wonderful en suite shower room the other with a beautiful claw foot bath (both en suite). Professional photos to follow. Other benefits include wood floors on the upper floors and stairs and thick carpets in the bedrooms and Air conditioning.

EPC Rating: C
Council Tax Band: H



Deposit: £11,000.00

Minimum Tenancy : 12 months

Notice
Important Notice: We have prepared these property particulars as a general guide to a broad description of the property. All photographs, floorplans, measurements and distances referred to are given as a guide only.

Floor Plan
EER Chart

The Energy-Efficiency Rating is a measure of a home's overall efficiency. The higher the rating, the more energy-efficient the home is, and the lower the fuel bills are likely to be.

EIR Chart

The Environmental Impact Rating is a measure of a home's impact on the environment in terms of carbon dioxide (C02) emissions - the higher the rating, the less impact it has on the environment.

Utility Supply Type
Electric Unknown
Gas Unknown
Water Unknown
Sewerage Unknown
Broadband Unknown
Telephone Unknown

Other Items Description
Heating Not Specified
Garden/Outside Space No
Parking No
Garage No

Broadband Coverage Highest Available Download Speed Highest Available Upload Speed
Standard 16 Mbps 1 Mbps
Superfast Not Available Not Available
Ultrafast 1000 Mbps 1000 Mbps

Mobile Coverage Indoor Voice Indoor Data Outdoor Voice Outdoor Data
EE Likely Likely Enhanced Enhanced
Three Likely Likely Enhanced Enhanced
O2 Enhanced Likely Enhanced Enhanced
Vodafone Enhanced Enhanced Enhanced Enhanced

Broadband and Mobile coverage information supplied by Ofcom.


marker icon